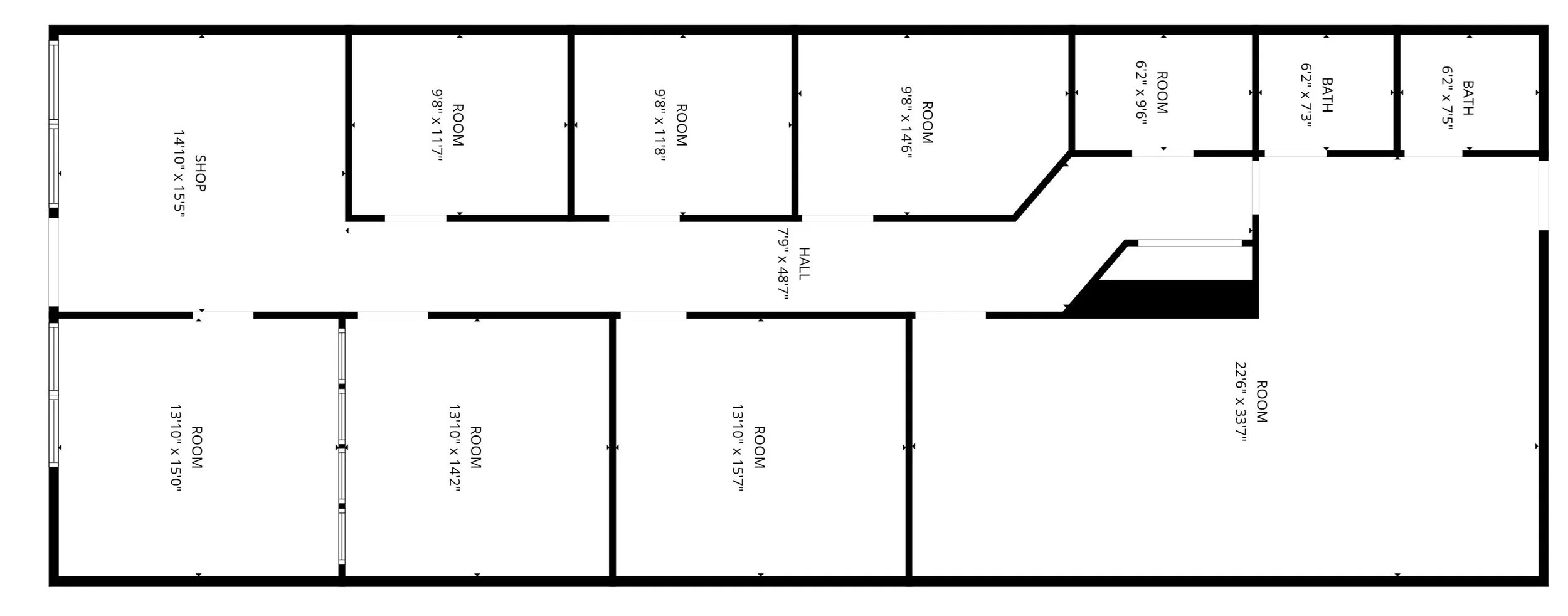
Professional 2D Floor Plans
Visualize the Flow: 80% of buyers are more likely to visit a home if they can see the layout and room connections before the first showing.
Plan the Move: Accurate room dimensions allow buyers to visualize their furniture in the space, creating an immediate emotional connection.
MLS-Ready & Unbranded: High-resolution, professional files delivered in JPG/PDF format, ready for instant upload to your listing.

